$450,000
0 bd | 0 ba
0 bd | 0 ba
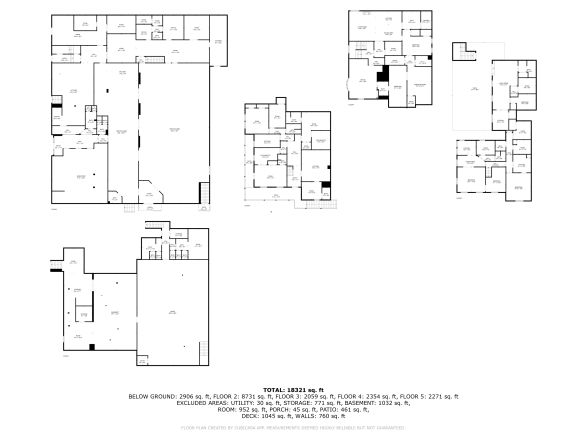
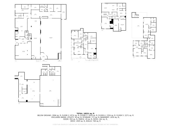
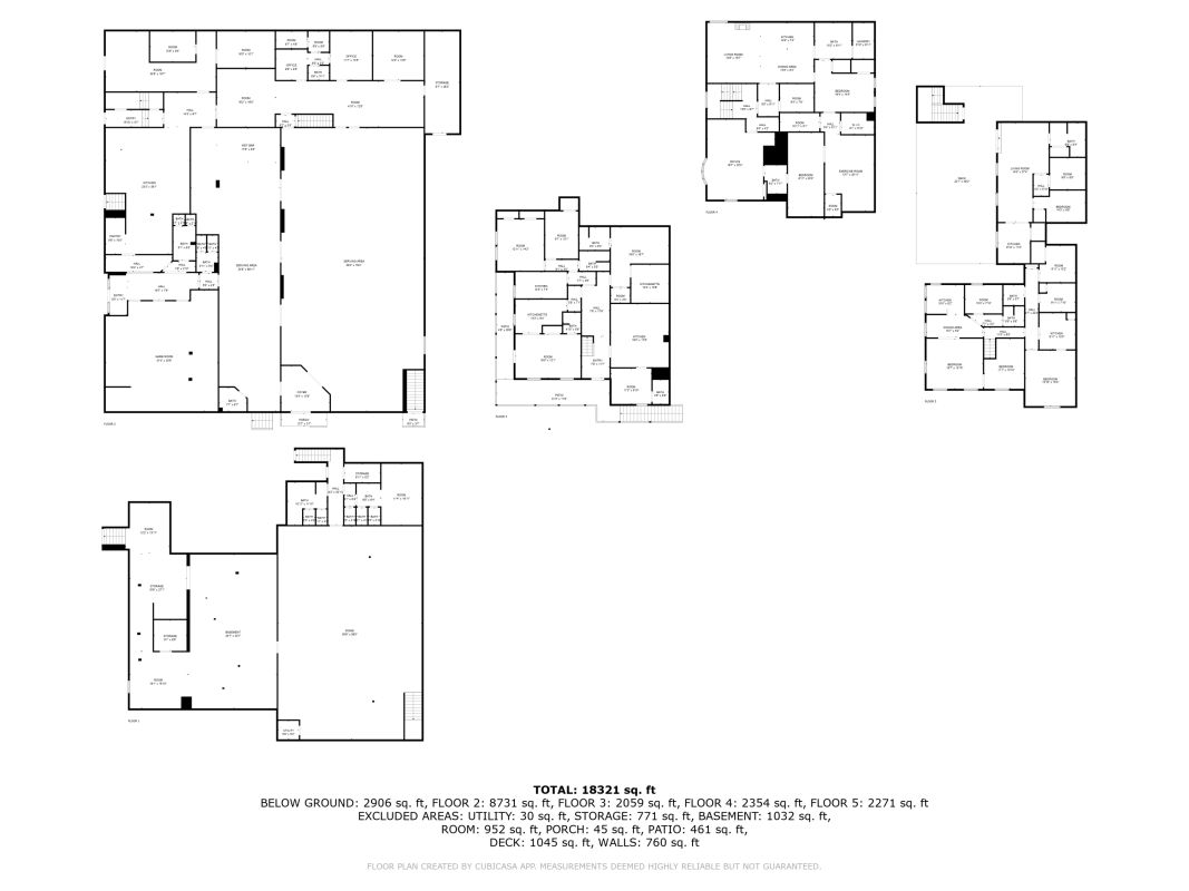
Historic St. Charles Cafe at 226 N 3rd St, Clearfield. Mixed-use investment featuring 8 fully rented, income-producing apartments plus restaurant, bar, event center, and nightclub. Includes liquor license. Established downtown landmark offering multiple revenue streams and strong cash flow opportunity.
Property Features
Property Type: Commercial
City: Clearfield
School District: Clearfield
County: Clearfield
Apx Above Grade Living Area:
Year Built: 1878
Lot Size: .48
Zoning: Commercial
Taxes: $6900
Tax Municipality: Clearfield Borough
Mortgage Calculator
Estimated Payment: ${{ vm.monthlyPayment }}/month
$
%
$
$
%
$
$
Directions Map
Directions: From I-80 take Exit 120 (Clearfield). Follow PA-879 N toward Clearfield. Continue onto S 2nd St. Turn right onto Nichols St, then left onto N 3rd St. Property will be on the right at 226 N 3rd St.



























